Brookside 4141 Barndominium Semi-Custom House Plan Normerica Front View

The Brookside 4141

PRICE STARTING AT

648,100 CAD

SIZE

3,659 SQ. FT.

FLOORS

2

BEDROOMS

5

BATHROOMS

5

Download Floorplan Start a Conversation
Brookside 4141 Barndominium Semi-Custom House Plan Normerica Front View
WALKTHROUGH VIDEO

Overview

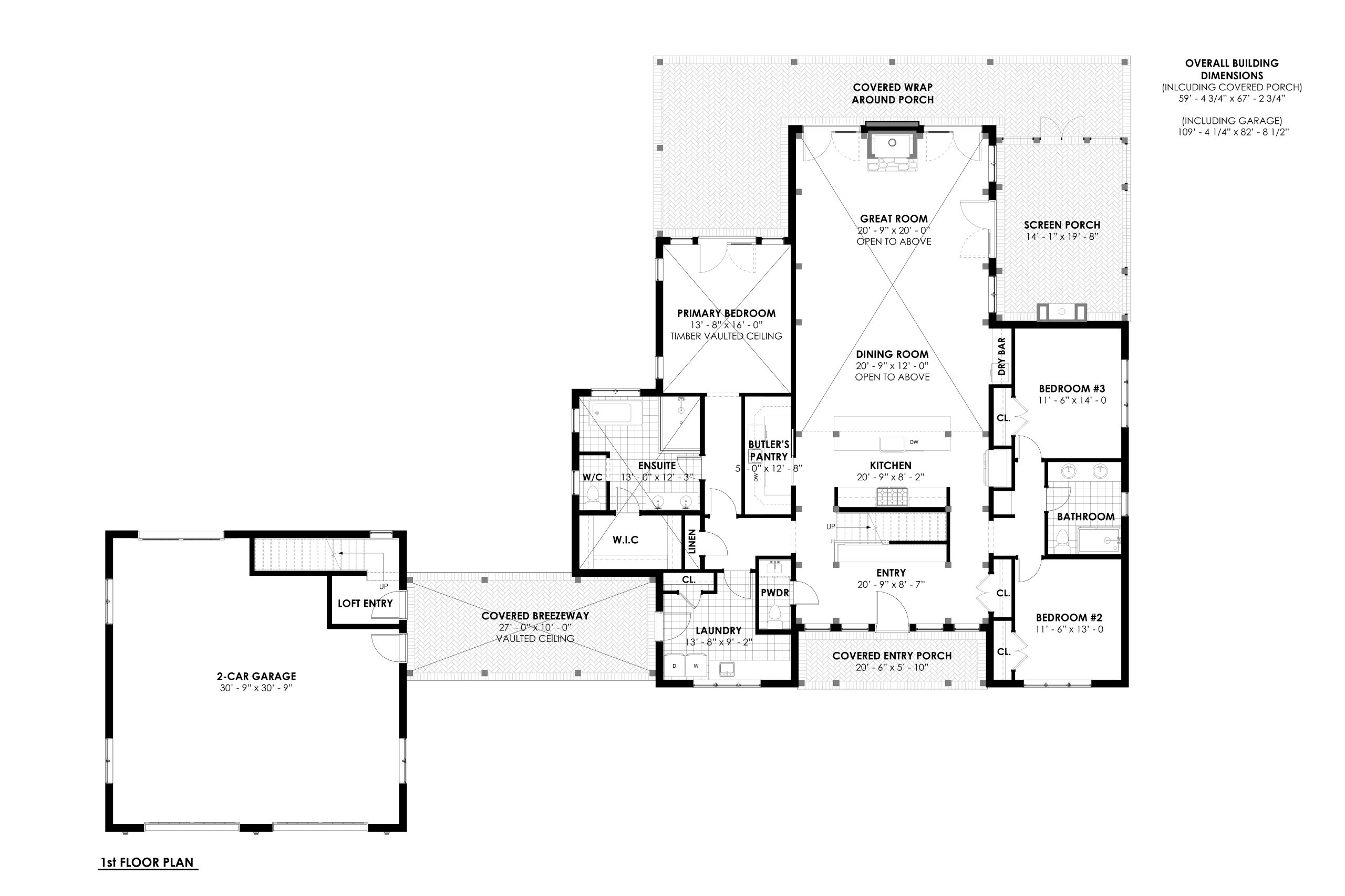
The Brookside is Normerica’s stunning interpretation of the increasingly popular barndominium style – a design that transforms the rustic charm of barn structures into sophisticated living spaces. This timber frame barndominium with garage captures the essence of barn conversion living while delivering all the amenities and craftsmanship of a custom timber frame home.

At 3,659 square feet of finished living space, The Brookside delivers the spacious, open-concept feel that defines barndominium design. The exterior features board and batten siding, casement windows with farmhouse-style grilles, and an impressive 552-square-foot covered wrap-around porch—perfect for entertaining and country living. A distinctive timber frame breezeway with cathedral ceiling connects the main living areas to the two-car garage, creating a signature architectural statement.

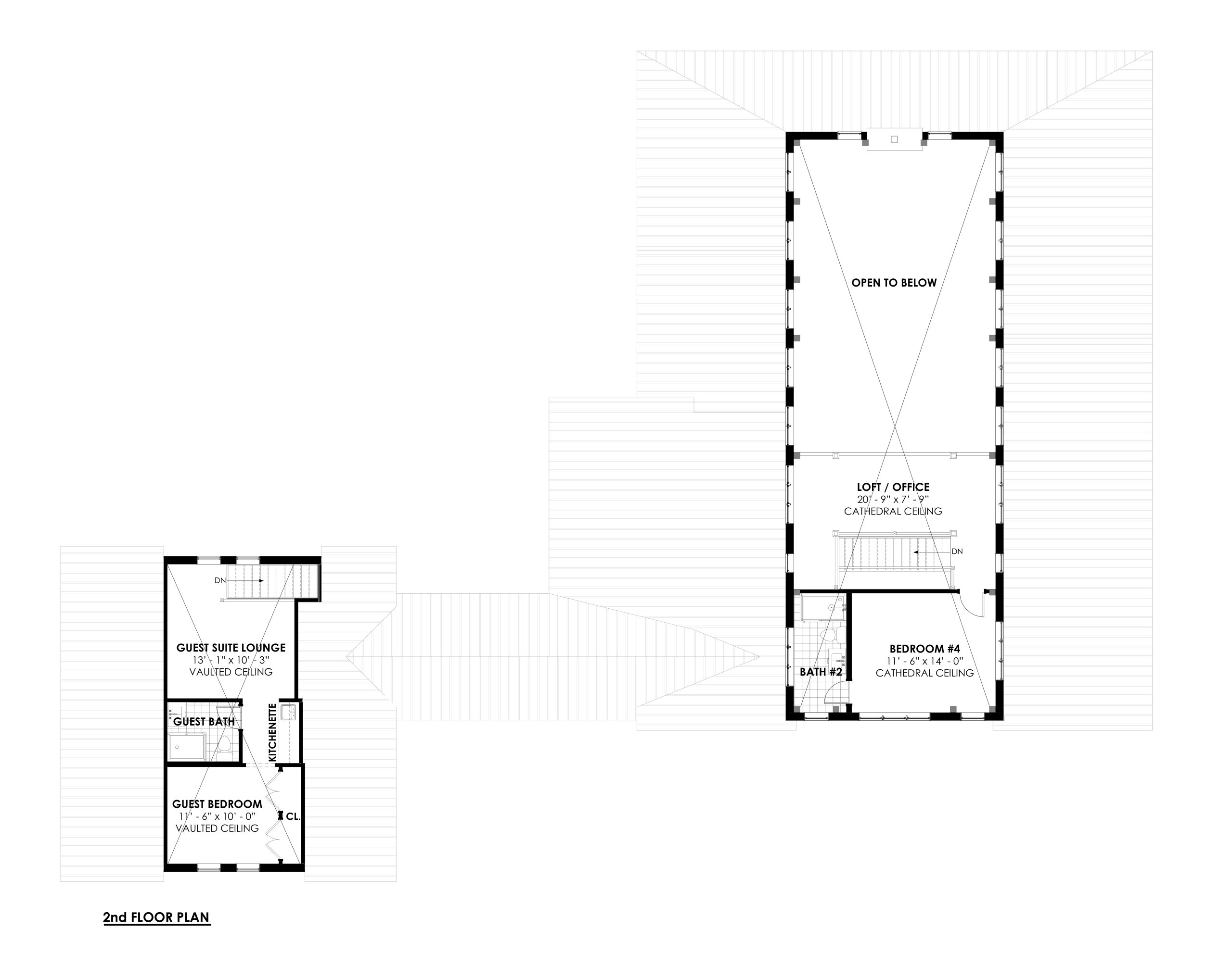
The interior layout brilliantly captures the essence of barn conversion—intimate spaces carved from grand open areas. Enter through a cozy 9-foot ceiling entry, then experience the dramatic reveal of the great room’s soaring 26’8″ cathedral ceiling with exposed scissor-style timber trusses. These signature trusses appear throughout the great room, dining room, and loft, providing the warmth and character that only authentic timber framing can deliver. Clerestory windows ring the upper walls, flooding the space with natural light, while a monumental wood-burning fireplace flanked by French doors serves as the room’s anchor.

The main floor primary suite is a true retreat, featuring timber vaulted ceilings, an ensuite bathroom with sloped ceiling, spacious walk-in closet, and French doors opening to the covered porch. The gathering kitchen includes a farmhouse sink, generous island with ample seating, and a butler’s pantry equipped with sink, dishwasher, and bar fridge. The adjacent dining room features a built-in dry bar with wine fridge—making this home an entertainer’s paradise.

One of The Brookside’s most forward-thinking features is the 422-square-foot guest suite above the garage – essentially a private accessory dwelling unit (ADU) for extended family and friends. This apartment includes both a lounge and bedroom with vaulted ceilings, a full bathroom, and kitchenette, creating a completely private space for visiting family, grown children, or even short-term vacation rentals.

With five bedrooms and five bathrooms strategically positioned across multiple levels, The Brookside balances openness with privacy. A second-floor loft office with cathedral ceiling and bedroom with ensuite creates a perfect guest area in the main house. The screened porch off the great room features its own fireplace, while French doors throughout create seamless indoor-outdoor connections essential to barndominium living.

The Brookside represents a fresh direction in timber frame design – perfect for empty nesters, families seeking modern barndominium house plans, or anyone drawn to the farmhouse-inspired barndominium aesthetic. This four-season home works equally beautifully on rural acreage or an urban estate.

Read More

Our Pricing

Our pricing represents the cost of the material shell package, typically 25-30% of your overall construction costs. We believe in transparency from the outset, so you can make informed decisions about your custom home journey. Pricing shown reflects August 2025 market pricing and can vary based on material market fluctuations.

Read More

Forests Canada

As a proud partner of Forests Canada, for every Normerica timber package purchased, we will make a donation in your name to support conservation, restoration, and the growth of Canada’s forests.

Read More

Exterior

Interior

Features & Floorplans

Specifications

  • 3,659 sq ft of thoughtfully designed space
  • 5 bedrooms, 5 bathrooms
  • Main floor primary suite with timber vaulted ceilings
  • 422 sq ft guest suite above 2-car garage
  • Entertainer's kitchen with butler's pantry
  • 552 sq ft covered wraparound porch
  • Timber frame breezeway
  • Screened porch with fireplace
  • Net Zero and Energy Star ready
  • Completely customizable design
Download Floorplan
Brookside 4141 Barndominium Timber Frame House Plan Normerica Floor Plan 1
Brookside 4141 Barndominium Timber Frame House Plan Normerica Floor Plan 2

Receive news and announcements from Normerica straight to your inbox.

Please enter your email

Thank you for subscribing!

Check us out
on LinkedIn.

Watch videos
on YouTube.

Join Us
on Instagram.